View Larger
Gallery
Map View
320 x 50
80,000.00 $
- 646 m
price p/m2
123.84 $
Title
სასწრაფოდ! იყიდება მიწის ნაკვეთი ურეკში
Reference Number
1035331
Phone
Posted
Feb 21, 2026
City/Region
Ozurgeti
District / Village
Ureki
Description
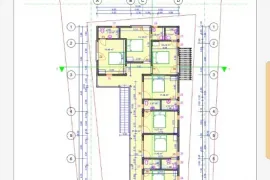
სასწრაფოდ! ძალიან იაფად! იყიდება 646 კვ.მ არა სასოფლო სტატუსის მქონე მიწის ნაკვეთი ურეკში, ზღვასთან ახლოს. დამტკიცებული 2 სართულიანი სასტუმროს პროექტით, სასტუმროს ფართი 364 კვ.მ 15 ოთახი. ტელ:555777705
Land Type
Non Agricultural
Area
646 m
It is possible to divide
No
By Building
No
With the approved project
No
Electricity
No
Water
No
Drainage
No
Gas
No
Asphalt road
No
- 48 Views
