VIP+
Увеличить
Галерея
На карте
VIP+
VIP+
VIP+
320 x 50
152,950.00 $
- 32115.0 м
м²-цена
1,330.00 $
Заголовок
იყიდება 4 ოთახიანი ბინა დიღმის მასივში, ბლოკი ბ
ID Объявлений
3583773
Телефон
Добавлено
25.03.2026
Город / Регион
Тбилиси
Район/Село
Дигоми
Улица
ул. бохуа
Описание
მშენებლობა ნ.ბოხუას №1.
მშენებლობის დასრულების ვადაა 2028- წლის აგვისტო.
ბინების კვადრატულობა
- 44,9-115კვ.მ
საცხოვრებელი კომპლექსის ერთ-ერთი მთავარი უპირატესობა მისი ადგილმდებარეობაა.
მშენებლობა პრესტიჟულ უბანში მიმდინარეობს, სადაც კომფორტი და იდიალური გარემოა, მიმდებარედ
გამწვანებული ტერიტორიაა, კეთილმოწყობილი შიდა ეზო, რაც კომფორტს ქმნის კორპუსის მობინადრეთათვის.
მშენებლობისას გამოიყენება მაღალი ხარისხის ენერგო ეფექტური, ეკოლოგიურად
სუფთა სამშენებლო და სარემონტო მასალები, რომელთაც გავლილი აქვთ ლაბორატორიული შემოწმება.
„ბ“ ბლოკი 12 სართულიანი კორპუსია (საცხოვრებელი 10 სართული) გათვლილია
160 ბინაზე. ნახაზში მოცემულია სტუდიოს ტიპის ორი, სამი და ოთხ - ოთახიანი ბინები.
ყველა ბინა არის ნათელი, თანამედროვე დაგეგმარებით განლაგებული. სადარბაზოში დამონტაჟდება
მაღალი ხარისხის 2 ლიფტი და სახანძრო უსაფრთხოების სისტემა 41-ე დადგენილების გათვალისწინებით.
ასევე პროექტში მოცემულია 2 დონიანი საპარკინგე სივრცე,
ბინები ბარდება მწვანე კარკასის მდგომარეობით:
- რკინის შესასვლელი კარი.
- ალუმინის კარ-ფანჯარა.
- ბლოკით მოწყობილი გაჯით გალესილი შიდა ტიხრები.
- იატაკ ქვეშ მოწყობილი გათბობის და წყლის მილები.
- მოჭიმული იატაკი (გამზადებული ლამინატის ან პარკეტის დასაგებად)
- აივანი სრულად მოპირკეთებული.
- ბუნებრივი აირის მილი მიყვანილი სამზარეულოსა და ქვაბის განთავსების
ადგილებამდე.
- ელ ენერგიის სადენები მიყვანილი ბინამდე.
- გაზის, წყლის და ელ. ენერგიის მრიცხველები.
„ბ“ ბლოკი ავტო სადგომის რაოდენობა ჯამში: 81 ავტოსადგომი. (-1
და 1 სართული)
მშენებლობის დასრულების ვადაა 2028- წლის აგვისტო.
ბინების კვადრატულობა
- 44,9-115კვ.მ
საცხოვრებელი კომპლექსის ერთ-ერთი მთავარი უპირატესობა მისი ადგილმდებარეობაა.
მშენებლობა პრესტიჟულ უბანში მიმდინარეობს, სადაც კომფორტი და იდიალური გარემოა, მიმდებარედ
გამწვანებული ტერიტორიაა, კეთილმოწყობილი შიდა ეზო, რაც კომფორტს ქმნის კორპუსის მობინადრეთათვის.
მშენებლობისას გამოიყენება მაღალი ხარისხის ენერგო ეფექტური, ეკოლოგიურად
სუფთა სამშენებლო და სარემონტო მასალები, რომელთაც გავლილი აქვთ ლაბორატორიული შემოწმება.
„ბ“ ბლოკი 12 სართულიანი კორპუსია (საცხოვრებელი 10 სართული) გათვლილია
160 ბინაზე. ნახაზში მოცემულია სტუდიოს ტიპის ორი, სამი და ოთხ - ოთახიანი ბინები.
ყველა ბინა არის ნათელი, თანამედროვე დაგეგმარებით განლაგებული. სადარბაზოში დამონტაჟდება
მაღალი ხარისხის 2 ლიფტი და სახანძრო უსაფრთხოების სისტემა 41-ე დადგენილების გათვალისწინებით.
ასევე პროექტში მოცემულია 2 დონიანი საპარკინგე სივრცე,
ბინები ბარდება მწვანე კარკასის მდგომარეობით:
- რკინის შესასვლელი კარი.
- ალუმინის კარ-ფანჯარა.
- ბლოკით მოწყობილი გაჯით გალესილი შიდა ტიხრები.
- იატაკ ქვეშ მოწყობილი გათბობის და წყლის მილები.
- მოჭიმული იატაკი (გამზადებული ლამინატის ან პარკეტის დასაგებად)
- აივანი სრულად მოპირკეთებული.
- ბუნებრივი აირის მილი მიყვანილი სამზარეულოსა და ქვაბის განთავსების
ადგილებამდე.
- ელ ენერგიის სადენები მიყვანილი ბინამდე.
- გაზის, წყლის და ელ. ენერგიის მრიცხველები.
„ბ“ ბლოკი ავტო სადგომის რაოდენობა ჯამში: 81 ავტოსადგომი. (-1
და 1 სართული)
Статус
В процессе строительства
Состояние
Зеленая рамка
Квадратный фут
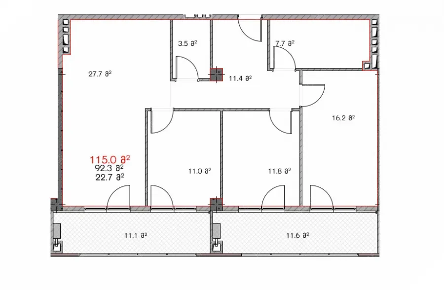
115.0 м
Комнаты
4 Kомнатная
Спальни
3
Площадь балкона
22.7 м
Ванные комнаты
2
Высота потолка
3.00
Вентиляция
Нет
Етаж
5
Количество этажей
12
Газ
Нет
Балкон / Терраса
2
Лоджия
Нет
Адаптированный для лиц ОВЗ
Нет
Камин
Нет
Бассейн
Нет
Сауна
Нет
Парковка
Подземная парковка
Интернет-просмотр
Viber
WhatsApp
Telegram
Zoom
- 6 Просмотра(ов)