TOP VIP
გადიდება
სურათები
რუკაზე ნახვა
TOP VIP
TOP VIP
TOP VIP
TOP VIP
TOP VIP
TOP VIP
TOP VIP
TOP VIP
TOP VIP
TOP VIP
TOP VIP
TOP VIP
320 x 50
286,000.00 $
- 32173 მ²
მ²-ფასი
1,653.18 $
სათაური
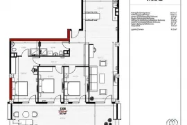
იყიდება 4 ოთახიანი ბინა საბურთალოზე
განცხადების ID
1696029
მობ. ტელ.
განთავსების თარიღი
18.02.2026
ქალაქი/რაიონი
თბილისი
უბანი/სოფელი
საბურთალო
ქუჩა
გ. დანელიას ქ.
აღწერა
სასწრაფოდ! იყიდება ბინა საბურთალოზე , იდეა პანორამას საცხოვრებელ კომპლექსში , ბინა ჩაგბარდებათ მწვანე კარკასის კონდინციით , კომპლექსში დაგხვდებათ: - ლობი კონსიერჟის სერვისით - პადელის მოედანი - 3 დონიანი ავტოსადგომი - საბავშვო სივრცე - რეკრეაციული სივრცე დამატებით შესაძლებელია 2 პარკინგის შეძენა, თითოეულის ფასი 15.000$ . ბინა მდებარეობს შენობის შუა ნაწილში, საიდანაც ხედი იშლება ბაგების/წყნეთის გზატკეცილის მხარეს.
სარემონტო სამუშაოების დაწყება შესაძლებელია ნებისმიერ დროს.
სარემონტო სამუშაოების დაწყება შესაძლებელია ნებისმიერ დროს.
სტატუსი
ახალი აშენებული
მდგომარეობა
მწვანე კარკასი
ფართობი
173 მ²
ოთახების რ-ბა
4 ოთახიანი
საძინებელი
3
აივნის ფართობი
41 მ²
სველი წერტილი
2
ვენტილაცია
არა
სართული
10
სართულების რაოდენობა
12
პროექტი
არასტანდარტული
ბუნებრივი აირი
არა
აივანი/ტერასა
1
ლოჯია
არა
შშმპ ადაპტირებული
არა
ბუხარი
არა
აუზი
არა
საუნა
არა
- 21 ნახვა
