VIP
გადიდება
სურათები
რუკაზე ნახვა
VIP
VIP
VIP
VIP
VIP
VIP
VIP
320 x 50
101,570.00 $
- 31101.57 მ²
მ²-ფასი
1,000.00 $
სათაური
Квартира 101.57 м2 на ул. Пармена Руруа (Лот НП009РМ)
განცხადების ID
3615358
მობ. ტელ.
განთავსების თარიღი
29.04.2026
ქალაქი/რაიონი
ბათუმი
უბანი/სოფელი
ადლია
აღწერა
Просторная 3-комнатная квартира с шикарной террасой — 101,57 м².
Современная квартира, в которой идеально сочетаются комфорт, функциональность и стиль. Пространство продумано до мелочей: большая гостиная для семейных вечеров, отдельная кухня-столовая, уютная мастер-спальня, полноценный кабинет и светлая детская комната.
Главная особенность квартиры — просторная терраса, которая станет любимым местом для отдыха, завтраков на свежем воздухе и уютных вечеров с видом на город.
Преимущества квартиры:
Общая площадь — 101,57 м²
Просторная гостиная с выходом на террасу
Отдельная кухня-столовая
Уютная мастер-спальня
Полноценный кабинет для работы или творчества
Светлая детская комната
Продуманная эргономичная планировка
Большая терраса для отдыха и встреч с друзьями
Современный санузел и удобные системы хранения
Планировка:
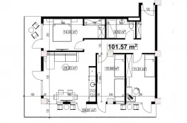
Гостиная — 35,83 м²
Кухня-столовая — 25,01 м²
Спальня — 14,04 м²
Кабинет — 10,88 м²
Детская — 11,31 м²
Ванная комната — 4,50 м²
Эта квартира идеально подойдёт для семьи или пары, которые ценят простор, комфорт и современное функциональное пространство. Здесь есть всё для комфортной жизни — уют, свет, воздух и атмосфера настоящего дома.
Лот НП009РМ
Современная квартира, в которой идеально сочетаются комфорт, функциональность и стиль. Пространство продумано до мелочей: большая гостиная для семейных вечеров, отдельная кухня-столовая, уютная мастер-спальня, полноценный кабинет и светлая детская комната.
Главная особенность квартиры — просторная терраса, которая станет любимым местом для отдыха, завтраков на свежем воздухе и уютных вечеров с видом на город.
Преимущества квартиры:
Общая площадь — 101,57 м²
Просторная гостиная с выходом на террасу
Отдельная кухня-столовая
Уютная мастер-спальня
Полноценный кабинет для работы или творчества
Светлая детская комната
Продуманная эргономичная планировка
Большая терраса для отдыха и встреч с друзьями
Современный санузел и удобные системы хранения
Планировка:
Гостиная — 35,83 м²
Кухня-столовая — 25,01 м²
Спальня — 14,04 м²
Кабинет — 10,88 м²
Детская — 11,31 м²
Ванная комната — 4,50 м²
Эта квартира идеально подойдёт для семьи или пары, которые ценят простор, комфорт и современное функциональное пространство. Здесь есть всё для комфортной жизни — уют, свет, воздух и атмосфера настоящего дома.
Лот НП009РМ
სტატუსი
ახალი აშენებული
მდგომარეობა
ახალი გარემონტებული
ფართობი
101.57 მ²
ოთახების რ-ბა
4 ოთახიანი
საძინებელი
3
სველი წერტილი
1
ლიფტი
სამგზავრო
ვენტილაცია
არა
სართული
4
სართულების რაოდენობა
6
პროექტი
არასტანდარტული
ბუნებრივი აირი
კი
აივანი/ტერასა
1
ლოჯია
არა
შშმპ ადაპტირებული
არა
ბუხარი
არა
აუზი
არა
საუნა
არა
გათბობა
გაზის გამათბობელი
ტექნიკა
ჭურჭლის სარეცხი მანქანა
აუდიო სისტემა
გაზქურა
გამათბობელი
გამწოვი
ელექტრო ღუმელი
ელექტრო ჩაიდანი
თმის საშრობი
ინდუქციური ღუმელი
კინოთეატრი
კონდიციონერი
მაცივარი
მიკროტალღური ღუმელი
მტვერსასრუტი
სარეცხი მანქანა
საშრობი
ტელევიზორი
უთო
ყავის აპარატი
- 23 ნახვა